Salem, OR 97301,3392 Sunnyview RD NE
Salem, OR 97301,3392 Sunnyview RD NE
Salem, OR 97301,3392 Sunnyview RD NE
47
See all 47 photos
$549,900
Est. payment /mo
6 Beds
3 Baths
2,272 SqFt
New

3392 Sunnyview RD NE Salem, OR 97301

REQUEST A TOUR If you would like to see this home without being there in person, select the "Virtual Tour" option and your agent will contact you to discuss available opportunities.
In-PersonVirtual Tour
Sat
3
Jan
Sun
4
Jan
Mon
5
Jan

UPDATED:

Key Details

Property Type Single Family Home

Sub Type Single Family Residence

Listing Status Active

Purchase Type For Sale

Square Footage 2,272 sqft

Price per Sqft $242

MLS Listing ID 754194115

Style Stories1, Bungalow

Bedrooms 6

Full Baths 3

HOA Y/N No

Year Built 1937

Annual Tax Amount $4,183

Tax Year 2025

Lot Size 10,454 Sqft

Property Sub-Type Single Family Residence

Property Description

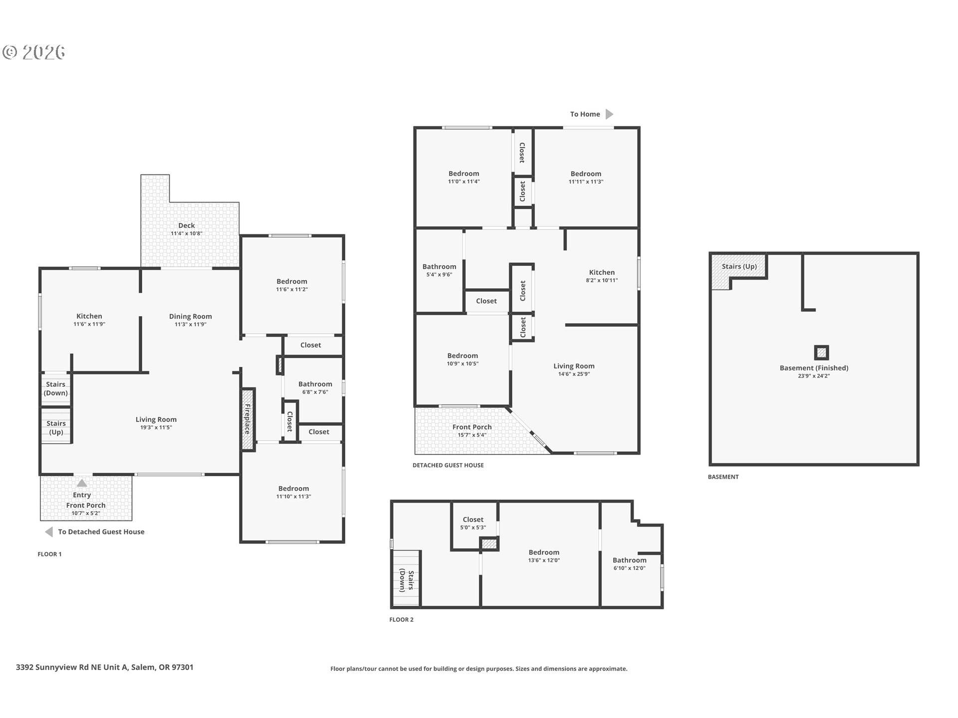
Exceptional dual living opportunity, ideal for House Hacking, Investment, or Multigenerational Living. This versatile property offers a rare combination of a classic, well maintained main home paired with a virtually brand new, detached second residence. Exceptional flexibility or income potential. The primary residence offers approximately 1,375 square feet of comfortable living space with 3 bedrooms and 2 bathrooms. Two bedrooms and a full bathroom are located on the main level, anchored by a welcoming living area with a fireplace and a recently updated kitchen. Upstairs, the private primary suite features a walk in closet and an ensuite bathroom with a fully tiled shower. Notable features include new flooring in 2025, a newer furnace and water heater, vinyl double pane windows, and numerous additional tune ups that make this home truly move in ready. A full unfinished basement provides storage space, or potential for additional living space. Central heating and cooling, along with a large rear deck, round out the homes functionality and comfort. The detached second residence was built in 2022 and received its final finishes and Certificate of Occupancy in 2025. This single level home offers approximately 897 square feet, featuring 2 bedrooms plus an office and 1 bathroom. With modern construction and brand new finishes, it is ideal for rental income, extended family, or a private work from home setup. Both homes are situated on an over 10,000 square foot lot, the property features established landscaping, a partially fenced yard, and a dedicated firepit area, creating a functional and inviting outdoor setting for both residences. Exceptional proximity to shopping and I5. Whether you are a first time buyer looking to offset your mortgage through house hacking, an investor seeking multiple income streams, or a larger household in need of a true dual living arrangement, this property delivers flexibility that is incredibly hard to find.

Location

State OR

County Marion

Area _174

Zoning RM2

Rooms

Basement Full Basement, Unfinished

Interior

Interior Features Accessory Dwelling Unit, High Speed Internet, Hookup Available, Separate Living Quarters Apartment Aux Living Unit

Heating Forced Air, Zoned

Cooling Central Air

Fireplaces Number 1

Fireplaces Type Wood Burning

Appliance Dishwasher, Disposal, Free Standing Range, Quartz

Exterior

Exterior Feature Accessory Dwelling Unit, Deck, Fenced, Fire Pit, Guest Quarters, Yard

View Territorial

Roof Type Composition

Accessibility CaregiverQuarters, GarageonMain, MainFloorBedroomBath, UtilityRoomOnMain

Garage No

Building

Lot Description Level

Story 2

Foundation Concrete Perimeter, Slab

Sewer Public Sewer

Water Public Water

Level or Stories 2

Schools

Elementary Schools Englewood

Middle Schools Parrish

High Schools North Salem

Others

Senior Community No

Acceptable Financing Cash, Conventional, FHA, VALoan

Listing Terms Cash, Conventional, FHA, VALoan

Virtual Tour https://www.youtube.com/watch?v=KNjn3bJXPvk


Regional Multiple Listing Service (RMLS)

GET MORE INFORMATION

Ryan Garrick

Ryan Garrick

Agent | License ID: 201218446

+1(971) 506-6942

Name
Phone*
Message

Go tour this home

3392 Sunnyview RD NE